Munich Arena Hotel

Location

Munich Airport, Germany

Client

SW MUNICH Management GmbH

Gross Floor Area (GFA)

9,063 m²

Number of Rooms

199 rooms

Scope of Services

phases 1–8

Status

In planning, phase 3

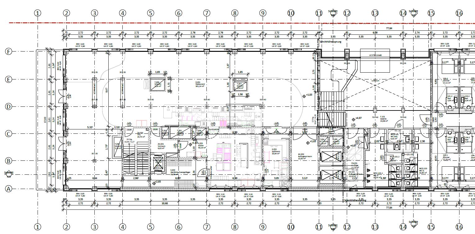
The building is designed as a 3-star lifestyle hotel with a total of 199 rooms and forms part of a multifunctional concert and convention center. A sky bar with an adjacent rooftop terrace of approximately 180 m² is located on the sixth floor.

On the ground floor, the building is divided into two volumes. In addition to the public foyer, these volumes accommodate non-public functions such as technical rooms, ancillary kitchen areas, as well as laundry and changing facilities. Approximately 12 parking spaces are located at ground level between the two building volumes.

On the first floor, the southern part of the building contains a restaurant with an associated kitchen, as well as the reception area with hotel-specific functions such as front office, administration, and luggage storage. In a slightly elevated section of the floor, public restrooms, a fitness area, and guest rooms are located.