Stiftungsklinik Weißenhorn
Location
Weißenhorn, Bavaria, Germany
Project Phase
Phases 1–5 (Basic Evaluation to Execution Planning)
Gross Floor Area (GFA / BGF)
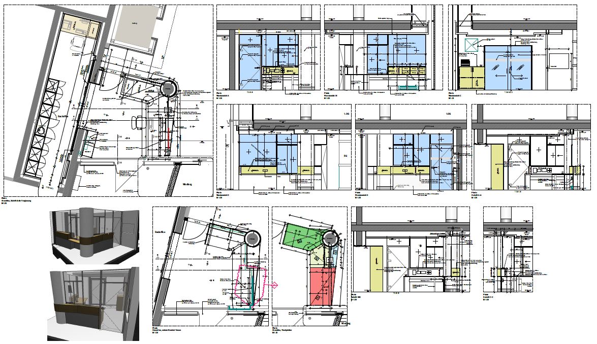
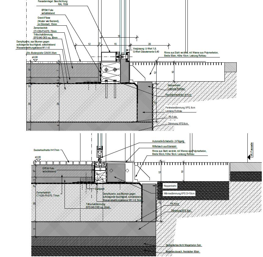
The project comprises the structural improvement and extension of the hospital complex in Weißenhorn, Bavaria, aiming at functional, technical, and organizational modernization of the existing facility. Planning services were provided across HOAI phases LPH 1–5, from initial analysis and project definition through concept and approval planning to full execution documentation.
The extension was designed to integrate additional patient capacity, implement a contemporary 1- and 2-bed room concept, and expand the central emergency department and intensive care unit. Particular emphasis was placed on optimizing internal circulation flows for patients, staff, and logistics, while upgrading technical systems and improving overall energy performance.
Due to the requirements of working within an existing structure and maintaining uninterrupted hospital operations during construction, the project demanded precise interdisciplinary coordination, phased implementation strategies, and a high level of technical detailing. The result is a functionally efficient and architecturally coherent solution aligned with contemporary healthcare standards.